каталог товаров
ваш город:
Ставрополь
Пн-Пт: 9.00-18.00 сейчас: 11:46 МСК

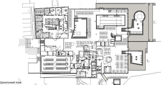
Юббстальский физиотерапевтический центр Гестлинг, Австрия

Гестлинг, Австрия 2009

Архитекторы: studioGA Architekten
Территория проекта: 5.700m²
Плошадь воды: 550m²
Заказчик: G1 Юббстальского Физиотерапевтического центра
Стоимость строительства^ € б.4 млн.
На территории муниципалитета Гестлинг был разработан новый компактный Юббстальский физиотерапевтический центр с соляными ваннами, саунами, бассейном. Возвышенность объекта над участком сделана из соображений защиты от наводнений. Поэтому потребовался особый подход к помещениям техоснащения, а также инновационным решениям для фильтров и фундамента.
Изогнутая, устойчивая деревянная конструкция крыши создает различные атмосферы в помещениях разных уровней. Имеется галерея с шезлонгами. Объект должен быть многофункциональным. При внедрении технологии особое внимание уделялось эксплуатационным расходам.
Всевозможные оздоровительные практики, процедуры специалисты проводят под руководством спортивного врача и физиотерапевта.
Предлагается профилактическая терапия, также терапия после травм и операций, которая проводится в сочетании со свойством этого терапевтического бассейна.

Юббстальский физиотерапевтический центр Гестлинг, Австрия Юббстальский физиотерапевтический центр Гестлинг, Австрия
51